无锡灵山禅修中心
无锡灵山禅修中心
王 迪 张天宇
吴立民先生1994年年初在法国答记者问时指出:佛教在过去是中国文化的重要组成部分,在现在是精神文明建设的一个重要方面,在未来是解决人类精神问题的必由之路。当代物质生活的发展、现代化带来的巨大压力以及市场经济形成过程中在道德领域带来的负面代价,使得人们必然会努力寻求心灵的安定与和谐。而目前中国的心理治疗,无论是在理论系统还是实践经验上都不够完备,尚无法解决人们心理与精神产生的诸多问题。作为中国传统文化重要资源的佛教,尤其是极富实践性的禅修,以解决人们的心灵认知问题,洞见实相,熄灭烦恼为第一要义,并有着号称“甚深”的宗教义理以及“法门”繁多的修持方法。因而,佛教禅修对于解决现代社会普遍的心灵问题、弥补传统医学和心理学的不足,有着巨大而积极的现实作用。国内外已经举办的禅修活动所获得的巨大反响与良好效果,就说明了这一点。
那么,怎样通过当代建筑语言对佛门的禅修传统和生命理念进行诠释,以期在体现传统佛教文化理念的同时,能够适应当代人们的生活、交往习惯和心理行为的特点呢?带着这个问题,江苏省无锡灵山禅修中心设计进行了有益的尝试。
项目背景
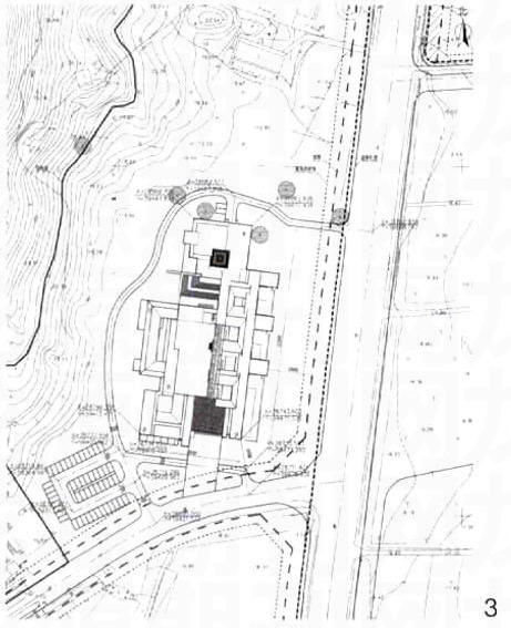
位于太湖之滨的无锡灵山景区,肇始于88m高的露天释迦牟尼大佛铜像,经过十余年的经营打造,逐渐形成了以佛教文化为主题的“灵山胜境”佛教文化园区。无锡灵山禅修中心项目是“灵山胜境”佛教文化园区重要的组成部分,也是“无锡太湖国家旅游度假区”功能的重要补充和完善。其主要功能是针对有佛教禅修需求的特定人群,为其提供短期封闭式集体禅定、清修、并体验佛门生活的场所,从而净化内心的烦恼、提升生命的内在品质、体悟无常无我、缘起性空的生命实相,安享生命中清凉、自在、安详的本来面目。禅修中心总建筑面积约11000m2(其中一期部分8868m2,二期高端别墅区约2130m2),占地面积约6.08ha。
设计理念



通过研究传统寺庙建筑、考察当代禅修研习场所、并与禅修礼佛人士深入沟通,确定了禅修中心的基本设计理念:
(1)公共空间VS私密空间:佛教社团成员间的亲密交流与个人清修的结合。
(2)面向自然的借景与对景。
(3)地方建筑特色的把握和传统佛教意境的诠释。
总平面布局
根据内部功能和分期建设的要求,禅修中心分为核心服务区(一期)、澄心斋(标准客房区/一期)以及幽篁苑(高端别墅区/二期)。建设用地位于无锡太湖国家旅游度假区马山区西半山东麓,东至古竹路,南接“灵山梵宫”东端入口道路,北面为西半山山脚,西侧邻接山上茶园。场地南北约440m,东西约140m,由西北向东南呈梯级状跌落,最高点与最低点相差约18m,场地南段较为平坦。根据场地情况,将主要入口布置在基地南侧,主体标准客房区相对集中地布置在场地南部的平坦地段,空间上强调曲折幽深、含藏无尽的“奥如”境界。而将私密性要求较高的高端别墅区布置在基地西北部地势高敞处,布局相对疏朗,空间上突出廓然万象、豁然开朗的“旷如”境界。二者中间以核心服务区组织在一起,既集中又分散,这种“疏可走马、密不透风”的布局,便于管理、方便残疾人使用、而且节约能源、降低造价,给分期建设提供了方便,同时又充分保证各自不同的私密性要求:在空间节奏上也达到了“先抑后扬”、“奥旷兼用”的禅佛境界(图1)。
单体设计
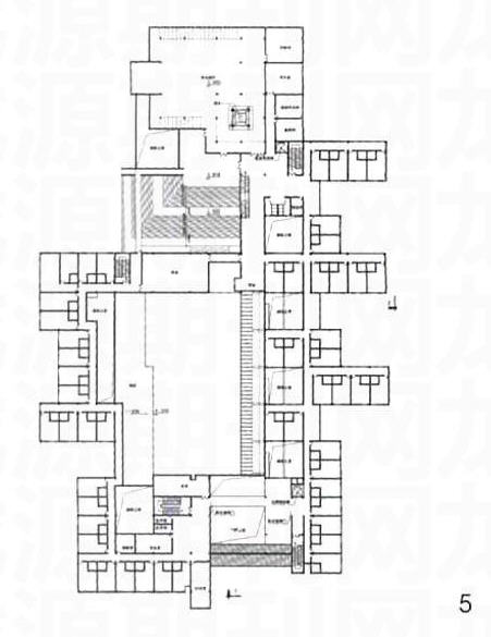
一期在建工程分为标准客房区(澄心斋)和核心服务区两部分(图2~6)。
1 澄心斋(标准客房区)
范围:位于基地东南部较平坦地段。
定位:标准客房区以及日常禅修、经行空间。
设计要点:考虑到佛教禅修的独特性,特别设置了三种类型的客房——单床间(30间)、双床标准间(71间,含无障碍客房2间)、套间(2间),满足不同层次,不同要求人士的住宿需求。其中单床间采用“方丈”的正方形平面格局,并采用2m见方的禅,卧兼顾的床塌形式(同时也可作为双人大床间使用)。内部陈设以简洁,古朴为主调,去除多余陈设和装饰。着重强调私人空间的领域感,视线上的纯净以及洞穴般低矮、小巧的尺度,从而给个人清修提供一个良好的环境。在客房的视线处理上,充分利用西侧远山借景,并结合内院古树、枯山水等景观,获得近一中一远多层次的组景效果,以符合佛教“寓物山恒在,恬心水任流”的“即景证心”的观照方式。在客房的组织上,则以多单元组团形式塑造学员间的“社团”氛围,从而增强个体对群体的依赖和认同感,使学员私人事务和个人烦扰退而居其次,以强化“身入佛门”禅修效果(图7~9)。
同时在东,西两翼分别布置具有浓郁佛教禅修特色的公共空间,并形成通往“色空一如塔”的仪式性空间的前导序列。另外,这些公共空间的设置也强化了禅修中心的场所感,创造出一种亲密,和谐的交流和互动。它们依次分别为:
(1)知客轩(入口门厅)
由“灵山胜境”东大门进入景区,绕过一片茂密的竹林,掩映在毛竹之中低矮的木制入口就是“知客轩” (图10)。“知客轩”为低矮的双坡顶玻璃屋面,玻璃内外分别安装木制格栅,阳光透过格栅照入室内,狭长,班驳的影子使人体味到如置身树林竹海之间的朴淡自然。“知客轩”前方,一方浅池——澄心池——将周围建筑和天光山色倒映在水中,池边白色的睡莲静静地开合,点化出清净安详的佛性。立于池畔,虽无僧人说法,却同样能澄心滤性,涤除来自于世俗凡务的烦扰,达到“眼尘心垢见皆尽,不是秋池是道场”的境界(图11)。
(2)云水廊
自入口“知客轩”进入,右手便是围绕“澄心池”的“云水廊”直通“色空—如塔”。所谓“云水廊”,言其如行云流水,过而不留(图12)。在“云水廊”上,分别布置佛教禅意的两组小品(图13)。
(3)水月圆明(南侧)
进入“云水廊”后,一道虹桥凌波飞跨水上,侧面一道圆满通明的满月形独立墙面框出澄静涵虚的水面,体现出“江清澄定体,古月照禅心”的境界。
(4)般若虚舟(北侧)
在“云水廊”接近核心服务区处,布置一横陈水面之上的木制休息空间,题名“般若虚舟”,体现出佛教“随缘任运”,“纵横无碍”,“适性为修”的禅性精神。
(5)茶室
为了塑造禅修中心的“社团”感,便于禅修学员之间的交流和互动,围绕中心“澄心池”设置了若干处小型茶室,茶室的开窗也针对所处不同位置和所观照的景观精心安排,以期获得参悟修持的理想效果(图14、图15)。
2 核心服务区
范围:位于整个建筑群北端。
定位:茶禅休闲,餐饮服务、集体禅修等公共活动。
设计要点:以“色空一如塔”为枢纽,包括“竹垆山房” (茶室)、“色空一如塔” (公共门厅)、斋堂(过堂餐厅)、禅堂(多功能厅)以及厨房、自助洗衣房等服务性空间(图16)。
(1)竹垆山房
“禅”旨在追求一种澹然恬适、清寂净思的“朴淡”人生境界,而“茶”以其“清苦而甘爽”的特性成为这种禅境的重要表征对象。饮茶从作为“坐禅”定心清神的重要手段发展到一整套茶礼仪程,逐渐成为禅事活动不可分割的一部分。该处将标准客房区东、西两翼衔接,并通往核心服务区,在布局立意上借鉴无锡惠山寺听松庵“竹垆山房”景致,依托室外台阶侧面的阶梯状跌水,“构精舍二间于泉之侧屏……俯迎溪之潆潢,天风拂林,众乐迭奏……籍以涤虑澄神”,凌波池上,清风徐来,唯茶香与禅意相伴,充分体现出“禅茶一味”的文化精神(图11)。
(2)色空一如塔
塔在传统寺庙中是佛祖和佛法的象征,也是整个寺庙中的精神核心。在禅修中心设计中, “色空一如塔”从功能上成为标准客房区和高端别墅区以及核心服务区的交通组织枢纽,从形式上成为整个组群的视觉中心,在更大范围的山水格局中,则起到崇胜风水气口的作用。为了体现佛教“诸法性空”的认识论的核心,塔身以玻璃作为主要材质,采用高透浮法玻璃和光栅玻璃相结合,利用光栅玻璃将自然光线分解为七彩光线的衍射原理,赋予塔身内部在绚烂与空灵之间步移景异的神奇景观,从而直观地体现出“色不异空、空不异色”的佛教“性空”观(图17)。同时,高大的玻璃塔身内部空气在阳光直射下,产生较大的空气热压,可以有效带动内部空气循环,与“澄心斋”水池相结合,将水面蒸发产生的上方清凉空气通过“云水廊”引入整个建筑,从而保证建筑内部即便在无风或少风的炎炎烈日下,也具备良好的通风降温条件,宛如“无暑清凉”的佛国净土。
另外,佛塔的原始雏形——印度率堵坡,很可能源于古印度的菩提树崇拜:由于佛教最初不立偶像,在释迦牟尼寂灭之初,信众将佛陀曾经在其下冥想参悟并最后得道的菩提树作为佛陀的象征进行崇拜,并围以石栏,石屋,最终菩提树仅在石屋顶端露出树冠一角,并演化为后世佛塔的塔刹以及塔身内部的塔心柱。绕树崇拜的礼仪也逐渐演变为佛教徒的绕塔仪式。因此,虽然佛塔在不同的国家和地区衍生出不同的形式和传统,但上部树状塔刹是其共有的特征。为了还原佛塔“以树代佛”这一本初信仰背后蕴涵的佛陀反对偶像崇拜的独特理念,在玻璃塔中心竖起通高的原木塔心柱,贯通斋堂、禅堂并直冲塔顶,成为这两个仪式性空间的核心。
(3)禅堂
禅堂是整个建筑中最大的公共空间,围绕代表佛陀的原木塔心柱布置,并朝向西侧88m高露天释迎牟尼大佛开窗。内部空间可根据功能灵活调整,从而适应抄经、讲经、瑜伽等一系列体验佛门集体生活的禅修活动。
(4)斋堂
佛门中的用餐,被称作“过堂”,是中国汉传佛教丛林中特有的仪制,它通过特殊的集体仪式、礼节和对身心、观想的要求,将进餐变成一种重要的修行方法,是佛教思想和礼仪的统一。位于禅堂下部的斋堂,采用佛教过堂的形式提供餐饮服务,建筑单体以方为主题,同样围绕代表佛陀的原木塔心柱布置。禅修信众在每日就餐前,都会绕塔心柱“经行”一周,强化“过堂”的宗教仪式性。
出自: 《建筑创作 》 2010年4期
欢迎投稿:lianxiwo@fjdh.cn
2.佛教导航欢迎广大读者踊跃投稿,佛教导航将优先发布高质量的稿件,如果有必要,在不破坏关键事实和中心思想的前提下,佛教导航将会对原始稿件做适当润色和修饰,并主动联系作者确认修改稿后,才会正式发布。如果作者希望披露自己的联系方式和个人简单背景资料,佛教导航会尽量满足您的需求;
3.文章来源注明“佛教导航”的文章,为本站编辑组原创文章,其版权归佛教导航所有。欢迎非营利性电子刊物、网站转载,但须清楚注明来源“佛教导航”或作者“佛教导航”。



