惊艳!一位佛教徒超具设计感的修行家居空间
发布时间:2016年05月03日

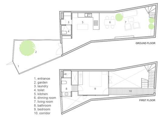
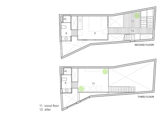
H.A建筑事务所在越南西贡平盛郡完成了一栋78平方米的住宅设计,该住宅为一个佛教信徒家庭所有,业主想要寻找一处平静、安宁、完全摆脱城市喧嚣的所在。设计以此为中心,它不仅仅是一栋住宅或一座寺庙,而是能让居住者感到平静、放松及抚慰心灵的家。为了达到这个目标,该项目朝着一种无限空间的方向进行设计,在那里居者可以漫步或者驻足,有着完全通透的视角,创造连绵不断的开放环境。

住宅核心区域的开放式起居空间
在这样一个明确概念的引导下,住宅平面的设计使所有家庭成员都可以看到对方、听到对方。自然、质朴的材质包括粗砖、木材和钢铁。光影之间的戏剧效果进一步补充了设计,在随着日光流转创造了网格状的花纹和不同的背景。





一个“悬挂的房间”补充了第二、第三层

住宅整天都有采光充足

光线透过外墙照到屋内形成了阴影花纹


(designboom设计邦)
没有相关内容
欢迎投稿:lianxiwo@fjdh.cn
------------------------------ 权 益 申 明 -----------------------------
1.所有在佛教导航转载的第三方来源稿件,均符合国家相关法律/政策、各级佛教主管部门规定以及和谐社会公序良俗,除了注明其来源和原始作者外,佛教导航会高度重视和尊重其原始来源的知识产权和著作权诉求。但是,佛教导航不对其关键事实的真实性负责,读者如有疑问请自行核实。另外,佛教导航对其观点的正确性持有审慎和保留态度,同时欢迎读者对第三方来源稿件的观点正确性提出批评;
2.佛教导航欢迎广大读者踊跃投稿,佛教导航将优先发布高质量的稿件,如果有必要,在不破坏关键事实和中心思想的前提下,佛教导航将会对原始稿件做适当润色和修饰,并主动联系作者确认修改稿后,才会正式发布。如果作者希望披露自己的联系方式和个人简单背景资料,佛教导航会尽量满足您的需求;
3.文章来源注明“佛教导航”的文章,为本站编辑组原创文章,其版权归佛教导航所有。欢迎非营利性电子刊物、网站转载,但须清楚注明来源“佛教导航”或作者“佛教导航”。
2.佛教导航欢迎广大读者踊跃投稿,佛教导航将优先发布高质量的稿件,如果有必要,在不破坏关键事实和中心思想的前提下,佛教导航将会对原始稿件做适当润色和修饰,并主动联系作者确认修改稿后,才会正式发布。如果作者希望披露自己的联系方式和个人简单背景资料,佛教导航会尽量满足您的需求;
3.文章来源注明“佛教导航”的文章,为本站编辑组原创文章,其版权归佛教导航所有。欢迎非营利性电子刊物、网站转载,但须清楚注明来源“佛教导航”或作者“佛教导航”。



